FURNITURE
ARCHITECTURE
PHOTOGRAPHY
Kelly Gill
FURNITURE
ARCHITECTURE
PHOTOGRAPHY
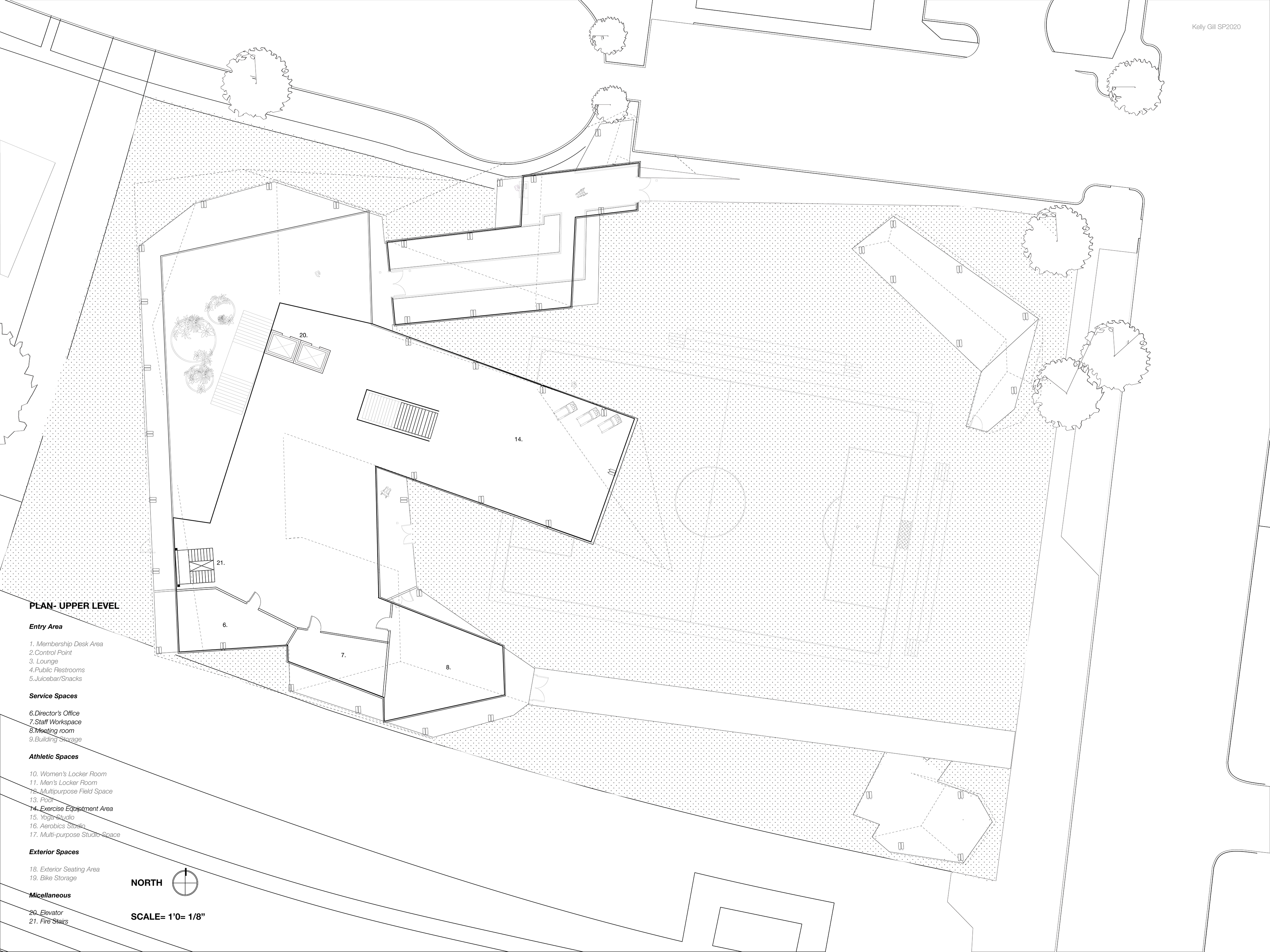
YMCA: CONCEPT
↑
Back to Top